钢结构牛腿,在工程领域常被称为“梁托”,是悬臂体系挂梁与悬臂间的关键搁置构造。在古建筑中,其学名为“撑栱”,现代钢结构工程中则作为传递荷载的重要部件。本文将围绕钢结构牛腿的定义、功能、检测要点及其在工程实践中的应用展开系统说明。

牛腿的基本定义与结构特征
力学传递机制
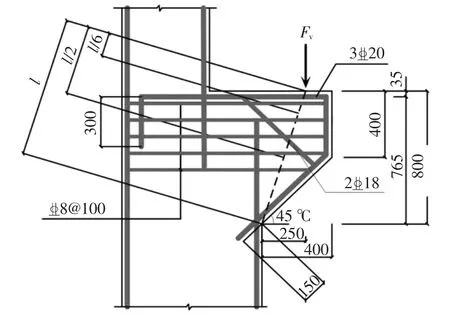
牛腿的核心功能在于承担剪力与弯矩:弯矩M由根部上下翼缘板承担,剪力V则由腹板承担。这种力学分配原则决定了牛腿在钢结构体系中的不可替代性。从截面形式来看,牛腿可分为等截面与变截面两类。当采用变截面设计时,端部截面高度需严格控制,不宜小于根部高度的一半,这一规定旨在确保应力传递的连续性,避免截面突变导致的应力集中。
与柱体连接工艺
牛腿与柱的连接焊缝计算需遵循严格标准。牛腿翼缘板和柱的连接必须采用焊透的对接焊缝,而腹板和柱的连接则可选用角对接组合焊缝或角焊缝。角焊缝的焊脚尺寸需根据实际剪力V精确确定。在现代工业厂房中,此类连接工艺的质量直接关系到整个结构体系的稳定性。
牛腿在工程检测中的关键指标
尺寸参数检测
牛腿根部截面尺寸需根据实际承受的剪力V和弯矩M确定。检测过程中,专业人员需通过精密仪器测量截面高度、翼缘板厚度、腹板厚度等核心参数,并与设计图纸进行比对。在重载工业环境如大型工业厂房中,牛腿作为门式刚架结构体系的重要组成部分,其尺寸精度直接影响结构自重分配与荷载传递效率。
焊缝质量评估
焊缝检测是牛腿评估的关键环节。检测人员需检查对接焊缝是否完全焊透、角焊缝的焊脚尺寸是否符合设计要求、是否存在裂纹、未熔合、气孔等缺陷。在钢结构工程实践中,高强螺栓连接的预紧力控制技术同样至关重要,扭矩法与转角法是两种常用工艺。
牛腿对建筑结构安全的影响
承载力保障机制
牛腿作为钢结构中的关键部件,其承载力直接影响整体结构安全。在大型工业厂房项目中,优化后的H型钢截面设计可使结构自重降低12%,同时确保牛腿满足长期服役要求。这对于承受重型设备且层高不等的多层厂房尤为重要。
抗震性能表现
研究表明,合理设计的明牛腿刚性节点不仅具有良好的静力性能,还具备优异的抗震性能。通过循环荷载试验,工程师可验证牛腿节点在反复受力状态下的性能表现,确保其在地震作用下仍能保持结构完整性。
耐久性影响因素
钢结构在使用过程中会受到环境、载荷等多因素影响,导致性能退化。牛腿区域因应力集中,更易出现锈蚀问题。建立基于环境因素与涂层防护性能的腐蚀速率预测模型,可为钢结构全生命周期健康管理提供依据。
检测方法与技术标准
常规检测流程
钢结构检测内容包括对牛腿部件的全面评估。常规检测主要通过目视检查、无损检测(如超声波、磁粉检测)等方法进行。对于一般性钢结构的常规检测,费用通常在几百至数千元不等,而针对牛腿的专项检测,如高强度螺栓连接副紧固轴力/扭矩系数检测等,费用可能按组或项计费。
专业技术手段
在施工阶段,钢牛腿焊接前需进行严格力学检算。以既有装配车间单榀屋架为研究对象,对危险截面(如吊车梁牛腿处)进行受力分析。采用精细化有限元模型,如ANSYS软件,可对比不同截面形式H型钢在荷载作用下的应力分布与变形特征。
特殊检测项目
对于特定工程需求,如疲劳测试、耐候性测试等复杂检测项目,需采用更专业的设备与方法。在大跨度异形钢结构工程中,牛腿的加工及安装完成形态直接影响屋架造型及后期安装效果。
工程应用案例分析
工业厂房应用
在商丘阳光铝材公司板带车间项目中,预制牛腿柱吊装是关键工序。通过科学施工组织,确保了牛腿安装精度,为后续钢结构施工奠定了基础。此类大型工业厂房采用门式刚架结构体系,牛腿作为主要承重构件的一部分,其质量直接关系到整个工程的安全性与耐久性。
体育场馆建设
苏州奥体中心体育馆钢结构工程中,V形柱上设置的幕墙牛腿是形态控制要点之一。这些牛腿的安装定位精度直接影响幕墙外侧铝板环梁的形态。工程采用全过程控制思路,从整体找形分析到局部单元控制,确保牛腿安装符合设计要求。
建筑创新设计
在劳埃德总部大厦等现代建筑中,牛腿不仅承担结构功能,还成为建筑表达的重要元素。铸钢牛腿通过复杂的几何形体充分体现结构功能,既满足力学要求,又展现美学价值。
常见问题与处理措施
锈蚀防护
针对牛腿区域易出现的锈蚀问题,应采取有效防护措施。研究表明,合理的锈蚀防护措施可有效延长结构使用寿命至设计年限的1.5倍。检测机构可通过建立腐蚀预测模型,为牛腿的维护提供科学依据。
安装精度控制
在V形柱牛腿安装过程中,定位精度直接影响后续工序质量。施工团队需采用高精度测量技术,确保牛腿位置符合设计要求。
连接节点处理
牛腿与柱的连接节点是检测重点。对于采用高强螺栓连接的节点,需严格控制预紧力,确保连接性能满足长期使用要求。
检测标准与发展趋势
现行规范体系
钢结构牛腿检测需遵循《钢结构工程施工质量验收规范》(GB50205-2001)、《钢结构设计规范》(GB50017-2003)以及《建筑钢结构焊接技术规程》(JGJ81-2002)等国家标准。这些规范为牛腿的设计、施工与检测提供了技术依据。
技术发展方向
随着检测技术的进步,钢结构牛腿检测正朝着更加精细化、智能化的方向发展。通过数值模拟与实验验证相结合的方法,不断提升牛腿设计与检测的科学性。
全生命周期管理
现代工程实践越来越重视钢结构的全生命周期健康管理。对于牛腿部件,建立从设计、施工到运维的全过程监测体系,是实现结构长效安全的重要保障。
小编有话说
钢结构牛腿作为建筑体系中的重要组成部分,其设计与施工质量直接关系到整体结构的安全性、稳定性和耐久性。通过科学的检测方法与严格的技术标准,可有效评估牛腿状态,及时发现并处理潜在问题,确保建筑结构长期稳定运行。
版权声明:本站部分文章来源或改编自互联网及其他公众平台,主要目的在于分享信息,版权归原作者所有,内容仅供读者参考。本站仅提供信息存储空间服务,不拥有所有权,不承担相关法律责任,如有侵权请联系xp0123456789@qq.com删除。


评论